服務熱線:15195518515在線客服:1464856260
傳真號碼:0517-86801009
郵箱號碼:1464856260@qq.com
網 址:http://m.baolongseals.com
地 址:江蘇省金湖縣理士大道61號
磁性翻板液位計怎么安裝
發布時間:2021-05-09 09:24:25??點擊次數:2141次
其實現在工業上絕大部分工廠在生產運行的時候,都需要給設備配備一套或多套液位計,也就是液位測量儀表,不過由于現在市場上有很多種液位計,而且工廠設備測量對象本身就有多種多樣,包括物理性質不一樣,化學性質不一樣,功能需求不一樣,安裝方式不一樣,測量方式不一樣,等等都會造成zui終選擇的液位計也都不一樣。液位計有雷達、玻璃管、浮球、磁翻板、重錘料位計、石英管、鍋爐、超聲波等等,這里我們主要講下磁性翻板液位計在安裝使用的時候需要注意什么,才能發揮原本應該有的作用和效果。
大多廠家生產的磁性翻板液位計是利用耐高溫并擁有磁性的磁塊組成的磁性浮子作為主要元件參與測量的,因為擁有磁性,所以在磁性翻板液位計使用的周圍不能出現擁有磁性的設備或者干擾磁性發揮的物品,否則就會影響磁性浮子的正常發揮,繼而導致液位出現誤差,所以安裝使用磁性翻板液位計的周圍的環境非常重要,一定要注意上面講的事項。

*二:開頭我們說了,液位計有安裝方式的不同,所以在安裝磁性翻板液位計的時候,不管你是選擇頂裝(垂直插入罐體內),還是側裝(側面法蘭對接),都需要對罐體等設備事先開孔。我們知道磁性翻板液位計是法蘭安裝的,所以事先在設備上的開孔也要根據廠家的法蘭標準來開孔,要么跟廠家購買配對法蘭;要么事先溝通,讓廠家定做跟自己設備上開孔的法蘭規格一樣也可以。

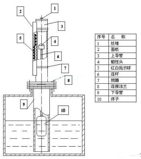
磁性翻板液位計由本體、翻板箱(由紅、白雙色磁性小翻板組成)、浮子、法蘭蓋等組成,用于各類液體容器的液位測量。能用于高溫、防爆、防腐、食品飲料等場合、作液位的就地顯示或遠傳顯示與控制。
1、磁性翻板液位計本體周圍不容許有導磁物質接近,禁用鐵絲固定,否則會影響磁性翻板液位計的正常工作;
2、如用戶自行采用伴熱管路時,必須選用非導磁材料,如紫銅管等。伴熱溫度根據介質情況確定;
3、磁性翻板液位計安裝必須垂直,磁性翻板液位計與容器引管間應裝有球閥,便于檢修和清洗;
4、介質內不應含有固體雜質或磁性物質,以免對浮子造成卡阻;
5、使用前應先用校正磁鋼將零位以下的小球置成紅色,其它球置成白色;
6、打開底法蘭,裝入磁性浮子;
7、調試時應先打開上部引管閥門,然后緩慢開啟下部閥門,讓介質平穩進入主導管,觀察磁性紅白球翻轉是否正常,然后關閉下引管閥門,打開排污閥,讓主導管內液位下降,據此方法操作三次,確屬正常,即可投入運行(腐蝕性等特殊液體除外);
8、應根據介質情況,不定期清洗主導管清除雜質;
9、對超過一定長度(普通型>3米、防腐型>2米)的液位計,需增加中間加固法蘭或耳攀作固定支撐,以增加強度和克服自身重量;
10、當配有遠傳配套儀表時需做到如下幾條:應使遠傳配套儀表緊貼液位計主導管,并用不銹鋼抱箍固定(禁用鐵質);遠傳配套儀表上感應面應面向和緊貼主導管;遠傳配套儀表零位應與液位計零位指示處在同一水平線上;遠傳配套儀表與顯示儀表或工控機之間的連線zui好單獨穿保護管敷設或用屏蔽二芯電纜敷設;接線盒進線孔敷設后,要求密封良好,以免雨水、潮氣等侵入而使遠傳配套儀表不能正常工作,接線盒在檢修或調試完成后應及時蓋上。
以上兩點只是磁性翻板液位計在安裝使用調試的時候需要注意的,選型注意事項以及后期使用和維護注意事項。



|